Trong bối cảnh Hải Phòng phát triển mạnh về thương mại – dịch vụ – logistics, nhu cầu về nhà phố cao tầng đa công năng ngày càng gia tăng. Công trình này là một ví dụ tiêu biểu cho tư duy thiết kế hiện đại: tối ưu diện tích đất – nâng cao giá trị khai thác – đảm bảo thẩm mỹ bền vững.
.png)
Tân cổ điển nhưng không nặng nề
Khác với các công trình cổ điển cầu kỳ, công trình tại Hải Phòng này được thiết kế theo hướng tân cổ điển tiết chế:
Phong cách này đặc biệt phù hợp với Hải Phòng – nơi các công trình cần sang trọng, chỉn chu nhưng vẫn hiện đại, dễ hòa nhập với cảnh quan đô thị.
.png)
Tầng trệt – không gian thương mại, văn phòng
Khối đế được xử lý bằng vật liệu màu sẫm, tạo cảm giác vững chắc, đồng thời làm nền tôn lên các tầng trên.
.png)
.png)
.png)
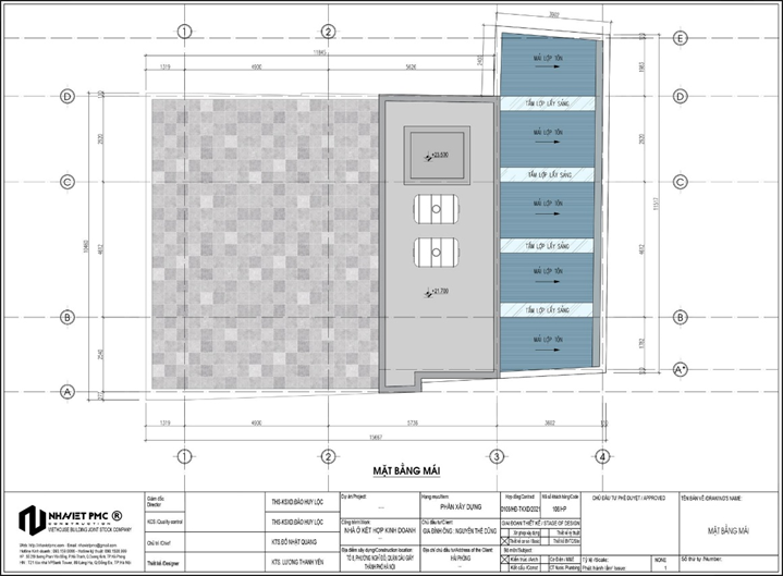
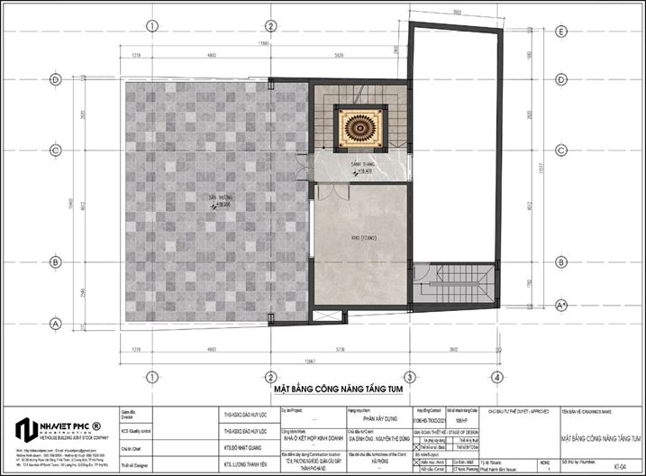
Tầng mái – không gian giá trị gia tăng
.png)
.png)
Công trình sử dụng bê tông khí chưng áp (AAC) cho hệ tường bao và tường ngăn – một lựa chọn đặc biệt phù hợp với nhà phố cao tầng tại Hải Phòng.
Nhờ trọng lượng nhẹ, bê tông khí giúp giảm tải đáng kể cho móng và kết cấu, nhất là với các khu vực đất nền yếu trong đô thị. Đồng thời, cấu trúc rỗng khí kín giúp cách nhiệt, chống nóng và cách âm hiệu quả, mang lại không gian bên trong mát mẻ, yên tĩnh hơn so với tường xây truyền thống.
.png)
Bê tông khí cũng dễ gia công, cho phép thi công phào chỉ, vòm cong và các chi tiết kiến trúc tân cổ điển một cách chính xác, sắc nét mà không làm tăng tải trọng công trình. Quá trình thi công nhanh, sạch, ít bụi, phù hợp với điều kiện xây dựng trong khu dân cư đông đúc.
Đây là giải pháp vật liệu giúp công trình đẹp hơn – nhẹ hơn – vận hành hiệu quả hơn trong dài hạn.
Một thiết kế đúng ngay từ đầu có thể giúp bạn tiết kiệm hàng trăm triệu chi phí xây dựng và vận hành.
Inbox Nhà Việt PMC – Kỹ sư Lộc để nhận tư vấn phương án thiết kế nhà phố cao tầng phù hợp nhất với khu đất của bạn tại Hải Phòng.
10/03/2026
Chia sẻTrong xu hướng phát triển nhà ở cao cấp tại các đô thị lớn, những công trình biệt thự không chỉ cần đẹp mà còn phải đáp ứng đồng thời nhiều tiêu chí: công năng tối ưu, kiến trúc bền vững, tiết kiệm năng lượng và gia tăng giá trị bất động sản theo thời gian. Dự án Biệt thự Sao Đỏ được thiết kế theo phong cách kiến trúc hiện đại, tổ chức không gian khoa học trên khu đất có diện tích 300m², với định hướng tạo ra một không gian sống tiện nghi, thoáng đãng và giàu tính thẩm mỹ. Công trình nổi bật với hình khối kiến trúc mạnh mẽ, vật liệu hiện đại và sự kết hợp hài hòa giữa không gian trong nhà và cảnh quan sân vườn, mang lại trải nghiệm sống chất lượng cho gia chủ.
Xem chi tiết02/12/2025
Chia sẻCông trình biệt thự 3 tầng phong cách tân cổ điển do Nhà Việt PMC thực hiện là sự hòa quyện giữa tính sang trọng – vững bền – tinh tế. Từ phối cảnh mặt tiền đến từng chi tiết phào chỉ, kiến trúc đều tôn lên vẻ đẹp bề thế và đẳng cấp của gia chủ, xứng đáng là trung tâm thẩm mỹ của cả khu vực. Thiết kế mang tính trường tồn, không lỗi mốt, phù hợp cả hiện tại lẫn nhiều thế hệ sau. Đây là lý do ngày càng nhiều chủ đầu tư lựa chọn phong cách tân cổ điển cao cấp khi xây dựng biệt thự.
Xem chi tiết19/02/2025
Chia sẻTrong nhịp sống hiện đại, một không gian sống lý tưởng không chỉ đáp ứng nhu cầu sinh hoạt mà còn phản ánh phong cách cá nhân và mang đến những trải nghiệm sống trọn vẹn. Căn nhà ở gia đình 2 tầng phong cách đương đại tại Kiến An, Hải Phòng, là sự kết hợp hoàn hảo giữa kiến trúc sang trọng, công năng tối ưu và không gian mở thoáng đãng.
Xem chi tiết04/06/2024
Chia sẻNếu bạn đang tìm kiếm một trải nghiệm lưu trú mới mẻ, độc đáo và thân thiện với môi trường, homestay Nhật Bản lắp ghép chính là lựa chọn hoàn hảo.
Xem chi tiết19/04/2024
Chia sẻTìm Về Sự Bình Yên Giữa Lòng Đô Thị - Trong nhịp sống hối hả của đô thị hiện đại, nơi mà ánh đèn sặc sỡ và tiếng ồn ào vang vọng, có lẽ không gì quý hơn sự bình yên và an lành trong tâm hồn mỗi khi chiều buông xuống. Đó là niềm khát khao của nhiều người, và cũng là nguồn động viên cho những hành trình tìm kiếm chốn an yên giữa cuộc sống bận rộn.
Xem chi tiết19/04/2024
Chia sẻÁnh đèn đua nhau lung linh, những tiếng cười giòn tan hạnh phúc của từng thành viên trong gia đình như một bức tranh cuộc sống hoàn hảo giữa lòng thành phố bận rộn nơi mà ta cứ quay cuồng trong vòng xoay cuộc sống. Căn nhà nhỏ ấy không chỉ là nơi sống mà còn là nơi để chia sẻ những trải nghiệm của mình, là nơi ươm mần cho những hạnh phúc bình dị đời thường mà sâu sắc.
Xem chi tiết07/03/2024
Chia sẻGần vườn quốc gia Cát Bà một ngôi nhà nhỏ xinh như một bức tranh trải nghiệm cuộc sống với thiên nhiên những rặng cây như là những người bạn đồng hành.
Xem chi tiết08/11/2022
Chia sẻTrong bài viết hôm nay, chúng tôi xin gửi tới bạn đọc mẫu thiết kế căn hộ cho thuê 6 tầng. Theo đó, thiết kế căn hộ cho thuê 6 tầng mang phong cách tân cổ điển. Dáng đứng hiên ngang đầy lịch lãm và cuốn hút người xem. Đây cũng là một trong những ấn tượng đẹp để thu hút người thuê phòng.
Xem chi tiết